Commercial Property / Commercial lease

Price on request
Exclusive Estate Monaco

Exclusive Estate Monaco

23 Bd Princesse Charlotte

#Ref : EEM-V-25
Price : On request
Product type : Commercial enterprise
District : Monte-Carlo (Monaco)
Living area : 330 sqm
Total area : 330 sqm
Floor : RDC

More details

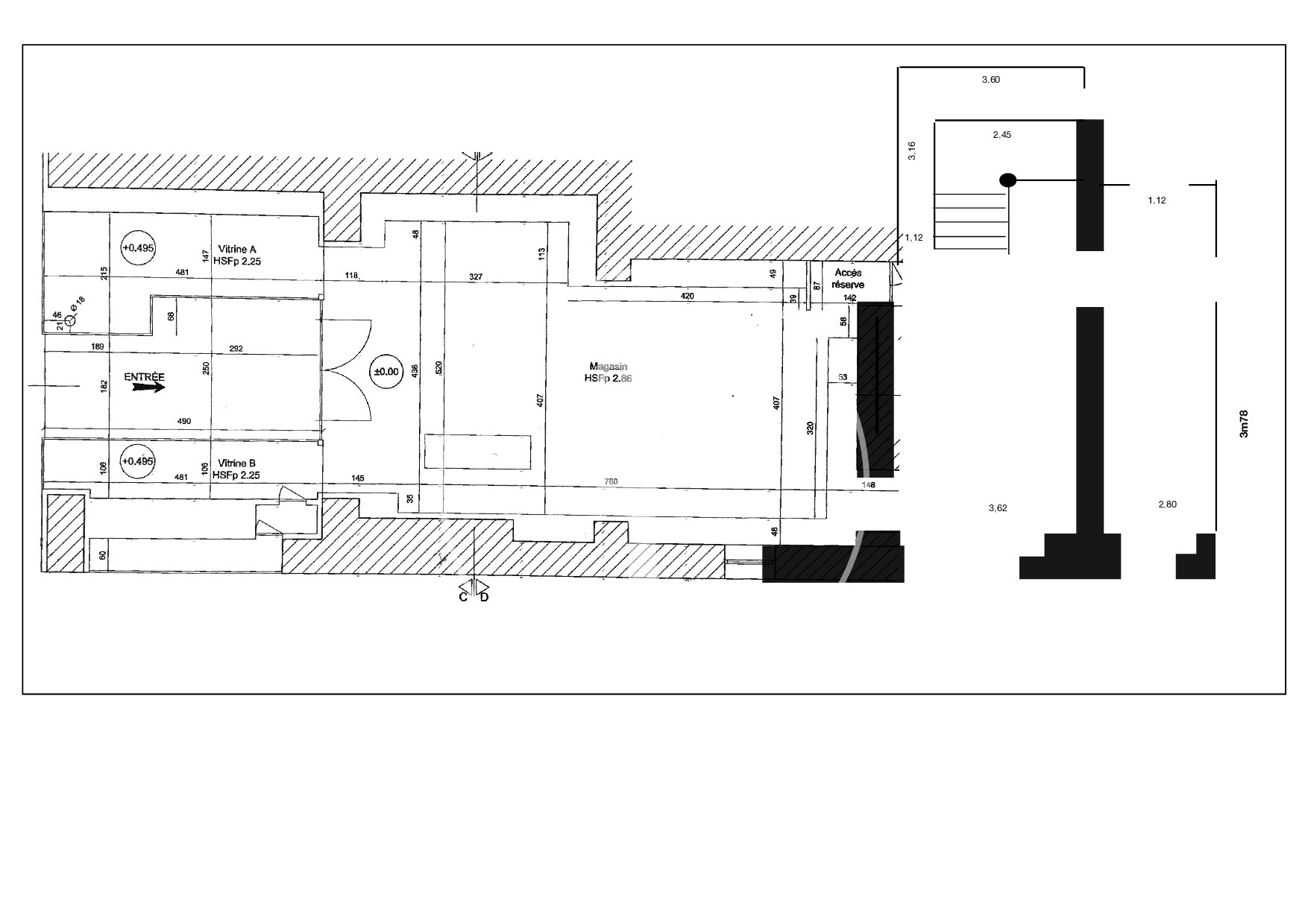
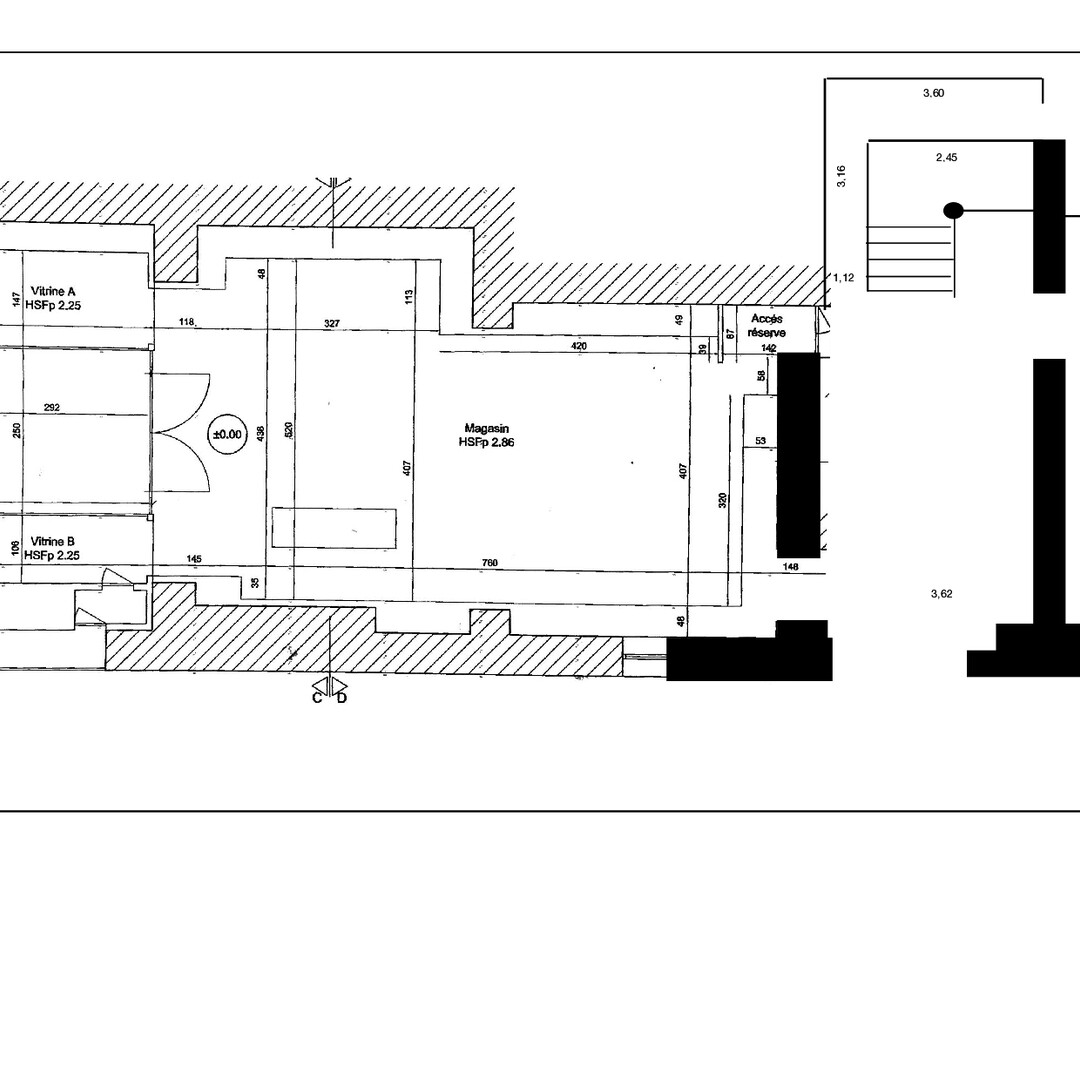
Lease for all businesses. A rare opportunity in an exceptional setting

Sale of a business ideally located in the heart of Monte-Carlo's shopping street, on the prestigious Boulevard des Moulins. This refined space is distinguished by its attractive window display and strategic location.

The space is spread over two levels:

  • Ground floor: 150 m², with an elegant shop window.
  • Basement : 180 m² carefully converted into storage space and offices.

 

Exclusive Estate Monaco

Exclusive Estate Monaco

23 Bd Princesse Charlotte

Contact

CFNQWZ
Copy the antispam code into the field on its right
* required information

Districts of Monaco

Mareterra Carré d'Or Condamine Fontvieille Jardin Exotique La Rousse - Saint Roman Larvotto Monaco-Ville Moneghetti Monte-Carlo Port