MONACO - THE TROCADERO

6 100 000 €
CAPI

CAPI

31, avenue Princesse Grace

SPACIOUS DESK TO GRAB

#Ref : 1C2 TROCADERO
Price : 6 100 000 €
Bathrooms : 1
Product type : Other product
Building : Trocadero
District : Monte-Carlo (Monaco)
Living area : 130 sqm
Total area : 158 sqm
Terrace area : 28 sqm
Floor : 1

More details

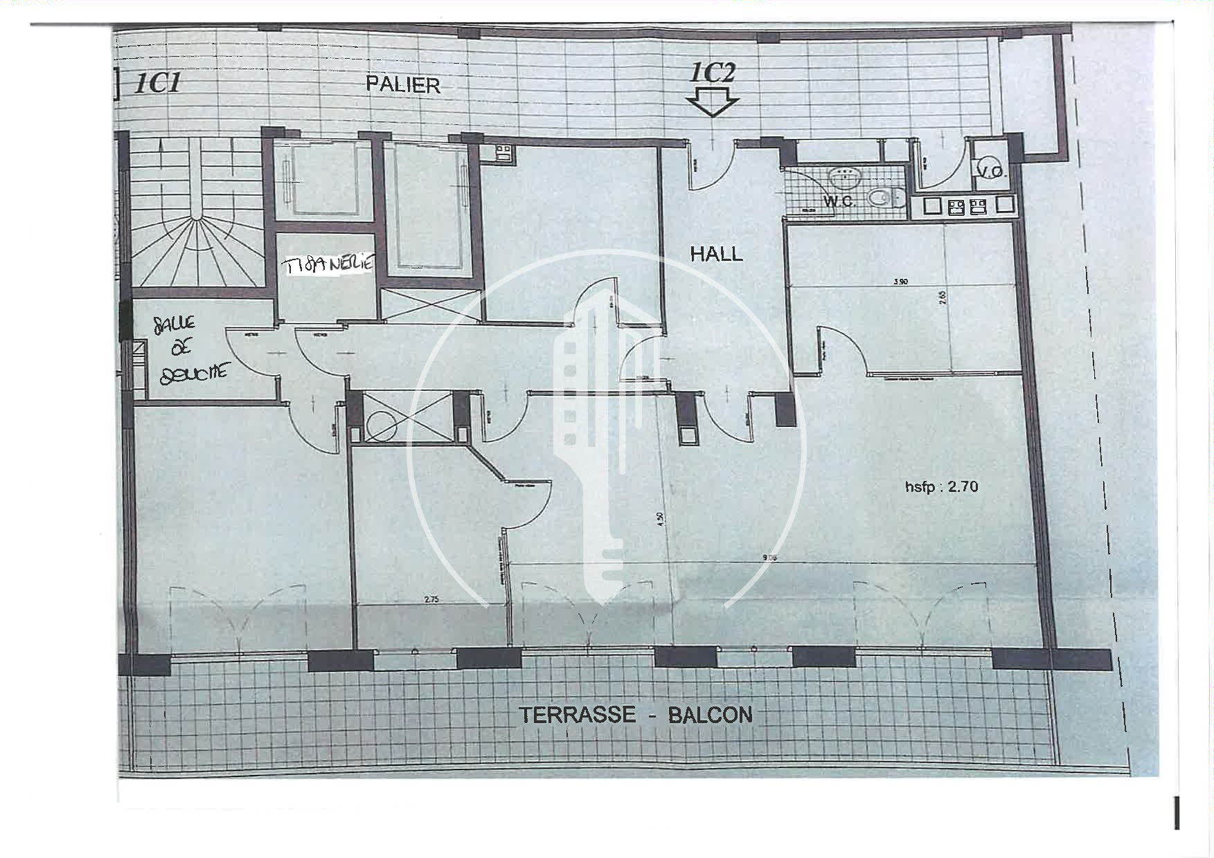
Located between the Larvotto and the Place du Casino, the Trocadero is a luxury building with concierge service.

This office, renovated, on the first floor has a surface area of 158m² including 28 loggia and is composed as follows:

  • An entrance hall
  • A guest toilet
  • An open space with a main room and two offices separated by glass partitions, as well as an executive office, each with access to the terrace.
  • A second office overlooking the back of the apartment
  • A herbal tea room
  • A shower room
CAPI

CAPI

31, avenue Princesse Grace

Contact

CEIJNP
Copy the antispam code into the field on its right
* required information

Property location

Monte-Carlo

Discover apartments in the heart of Monte Carlo.

This iconic district is famous for luxury residences, elegant lifestyle and world-class landmarks.

Districts of Monaco

Mareterra Carré d'Or Condamine Fontvieille Jardin Exotique La Rousse - Saint Roman Larvotto Monaco-Ville Moneghetti Monte-Carlo Port