Properties for sale in Monaco

EXCEPTIONAL APARTMENT PORT HERCULE

Back to listing

A stone's throw from shops and amenities

Price on request
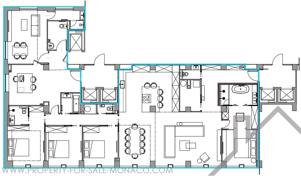
No. rooms : 9
Product type : Apartment
City : Monaco
Country : Monaco
Living area : 247 sqm
Total area : 247 sqm
Parking : 2

Located on Port Hercule, in a building with concierge, magnificent apartment completely renovated with quality materials, consisting of an entrance hall, guest toilet, living room, dining room, magnificent fully equipped kitchen, laundry room, master bedroom with dressing room and full bathroom, 3 other bedrooms with cupboard, one with full bathroom, shower room, separate toilet, office part composed of a large office with meeting room, 2nd office, Shower room, bathroom, service door, air conditioning.

Two parking spaces in addition at the price 700.000 - Mixed use


Property location

Agence

Carat Properties
Tour Odéon 36 av. de l'Annonciade

carat-properties.com

+377 99 99 18 18

Contact

* required information

Back to listing

FR EN IT

Districts of Monaco

Anse du Portier / Carré d'Or / Condamine / Fontvieille / Jardin Exotique / La Rousse - Saint Roman / Larvotto / Monaco-Ville / Moneghetti / Monte-Carlo / Port