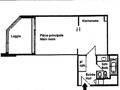
MONTE CARLO SUN / STUDIO WITH PARKING AND CELLAR
Large studio with entrance and closet, fitted kitchen, main room, bathroom and loggia. A cellar and a parking space complete this property.
Property location
Agence
15, boulevard Princesse Charlotte