Properties for sale in Monaco

APPARTEMENT DANS MAGNIFIQUE RESIDENCE

Back to listing

A deux pas des commerces et commodités

2 900 000 €
No. rooms : 2 rooms
Product type : Apartment
City : Monaco
Country : Monaco
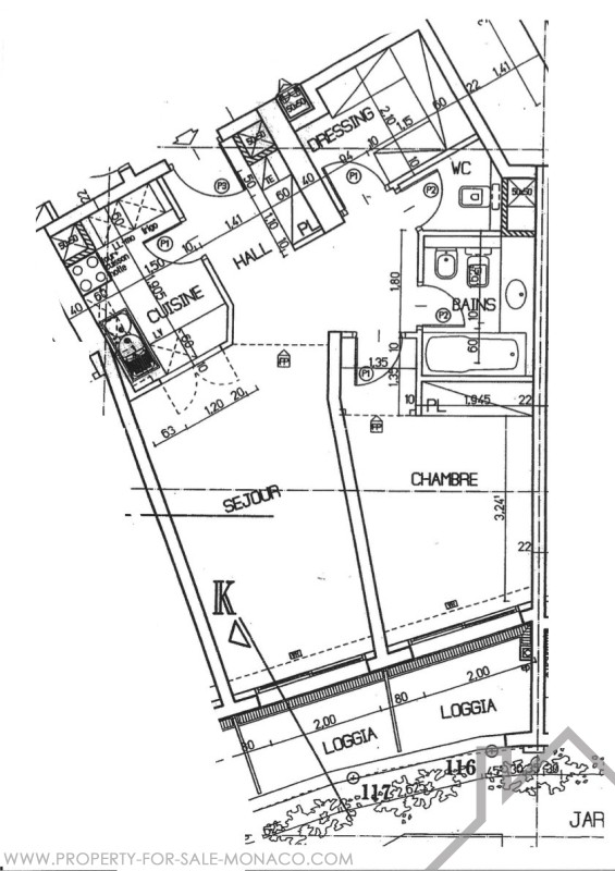
Living area : 70 sqm
Total area : 81 sqm
Terrace area : 11 sqm
Floor : Rdc
Release date : à définir
Parking : 1

Magnifique appartement situé dans une Résidence avec gardiennage 24h/24, composé d’un hall d’entrée, un séjour, une cuisine ouverte entièrement aménagée, toilette invités, chambre avec dressing et salle de bains complète, terrasse. Prestations luxueuses.

Cave et parking

L'appartement est actuellement loué jusqu'au 30/09/2024 au prix mensuel de 4.437 € plus charges.

 

 


Property location

Agence

Carat Properties
Tour Odéon 36 av. de l'Annonciade

carat-properties.com

+377 99 99 18 18

Contact

* required information

Back to listing

FR EN IT

Districts of Monaco

Anse du Portier / Carré d'Or / Condamine / Fontvieille / Jardin Exotique / La Rousse - Saint Roman / Larvotto / Monaco-Ville / Moneghetti / Monte-Carlo / Port