Several and spacious studios in the heart of La Condamine

Price on request
Miells-Christie's

Miells-Christie's

14 Avenue de la Costa

We are offering for sale large studios located in a prestigious building in the heart of the historic Condamine district.
Close to numerous shops and restaurants, these properties enjoy a central location just steps from Port Hercule.

#Ref : MP-2897
Price : On request
Bathrooms : 1
Product type : Apartment
Building : Le 45G
District : Condamine (Monaco)
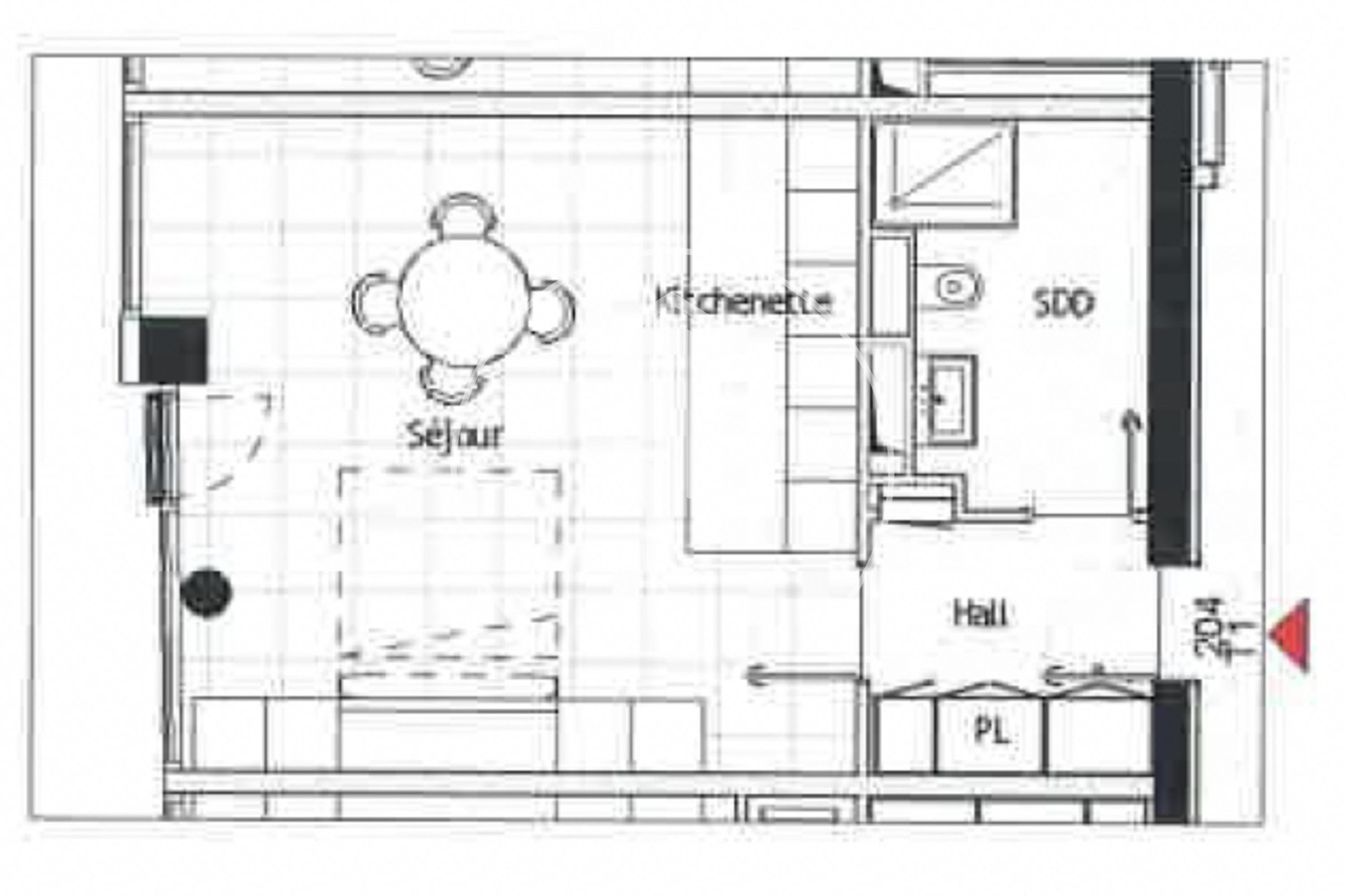
Living area : 50 sqm
Total area : 50 sqm
Floor : 2
Release date : 15/06/2026

More details

Located in one of Monaco’s newest and most elegant buildings, right in the heart of the Condamine district, these studios range from 46m² to 62m² and embody refinement and modern comfort.
These studios are perfect as a pied-à-terre in the Principality or attractive for rental investment; they feature high-end finishes and a well-thought-out layout to optimise space.

Each studio comprises an entrance hall, a main room with an open-plan kitchen, and a fully fitted bathroom.
The studios can also be combined to form two- or three-room apartments.

A secure parking space within the residence can be purchased at an additional cost, ensuring optimal everyday convenience.

The properties are let on an annual basis.

The 45 G residence in Monaco is a true modern architectural gem that combines contemporary style with sleek design elements. Each apartment offers exceptional features, including marble floors, high-end fittings and designer fixtures.
Miells-Christie's

Miells-Christie's

14 Avenue de la Costa

Contact

CHKOPQ
Copy the antispam code into the field on its right
* required information

Property location

Districts of Monaco

Mareterra Carré d'Or Condamine Fontvieille Jardin Exotique La Rousse - Saint Roman Larvotto Monaco-Ville Moneghetti Monte-Carlo Port