Magnificent administrative office / Commercial premises Fontvieille

2 780 000 €
Carat Properties

Carat Properties

Tour Odéon 36 av. de l'Annonciade

Close to shops and amenities

#Ref : AL 101 MC bis
Price : 2 780 000 €
Product type : Office
City : Monaco
Living area : 87 sqm
Total area : 87 sqm
Floor : Rdc
Release date : 1er octobre 2026

More details

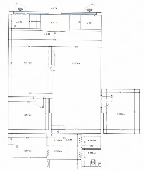
Located in the heart of Fontvieille, magnificent office with beautiful window and double access, consisting of an entrance hall, beautiful main room, two offices, a storage room, a laundry room, WC, large storage cupboard. Air conditioning. Nice services.

Rented 4.881,40 €uros TTC / month charges included. Lease 3/6/9

Carat Properties

Carat Properties

Tour Odéon 36 av. de l'Annonciade

Contact

BDFIQV
Copy the antispam code into the field on its right
* required information

Property location

Districts of Monaco

Mareterra Carré d'Or Condamine Fontvieille Jardin Exotique La Rousse - Saint Roman Larvotto Monaco-Ville Moneghetti Monte-Carlo Port