Properties for sale in Monaco

Exclusive - Carré d'Or - Le Winter Palace - Duplex penthouse to renovate

Back to listing

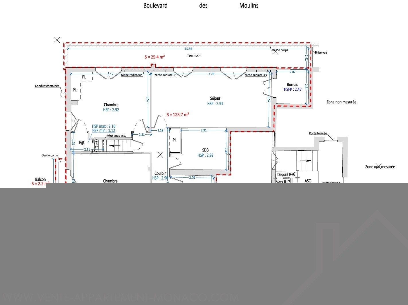
Located on the 6th and 7th floors of a bourgeois building, this rare duplex penthouse seduces with its high potential, its optimized configuration and its generous volumes.

It consists of a bright living room, two bedrooms, an independent kitchen and two bathrooms.

On the upper floor, a superb private roof terrace of 111.3 m² offers a real outdoor living space, already equipped with an outdoor kitchen, ideal for entertaining and taking full advantage of the sunny days.

The apartment requires a complete renovation, leaving its future owner the opportunity to rethink it entirely according to his tastes and desires.

11 200 000 €
No. rooms : 3 rooms
Product type : Apartment
City : Monaco
Country : Monaco
Floor : 6

Located on the 6th and 7th floors of a bourgeois building, this rare duplex penthouse offers great potential thanks to its configuration and generous volumes.

Including:

- a bright living room,
- 2 bedrooms,
- an independent kitchen,
- 2 bathrooms.

The upper floor reveals a superb roof terrace of 111.3 m², entirely en-suite, fitted with an outdoor kitchen, ideal for enjoying an outdoor living space.

The apartment requires a complete renovation, allowing its future owner to redesign it entirely according to his tastes


Property location

Agence

John Taylor
20, boulevard des Moulins

www.john-taylor.fragence-immobiliere-de-prestigemonaco

+377 93 50 30 70

Contact

* required information

Back to listing

FR EN IT

Districts of Monaco

Anse du Portier / Carré d'Or / Condamine / Fontvieille / Jardin Exotique / La Rousse - Saint Roman / Larvotto / Monaco-Ville / Moneghetti / Monte-Carlo / Port