EXCLUSIVE - STUDIO - PLACE DES MOULINS

1 590 000 € Exclusive
Europagence

Europagence

1, avenue Henry Dunant

Located in the Le Continental building on Place des Moulins, studio apartment close to shops and transportation.

#Ref : EAGV 13205
Price : 1 590 000 €
Bathrooms : 1
Product type : Apartment
Building : Le Continental
District : Monte-Carlo (Monaco)
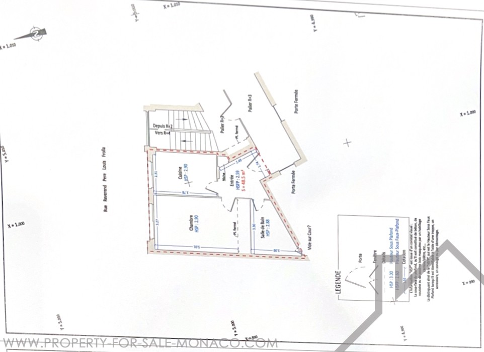
Living area : 48.5 sqm
Total area : 48.5 sqm
Floor : 3
Release date : 31/01/2027
Exclusive

More details

Nestled on Place des Moulins, in the “Le Continental” building, studio apartment comprising:

- An entrance hall

- A main room with closet

- A separate, equipped kitchen

- A bathroom with toilet

Europagence

Europagence

1, avenue Henry Dunant

Contact

BDGIMQ
Copy the antispam code into the field on its right
* required information

Property location

Monte-Carlo

Discover apartments in the heart of Monte Carlo.

This iconic district is famous for luxury residences, elegant lifestyle and world-class landmarks.

Districts of Monaco

Mareterra Carré d'Or Condamine Fontvieille Jardin Exotique La Rousse - Saint Roman Larvotto Monaco-Ville Moneghetti Monte-Carlo Port