LEONARDO PALACE – ENTIRE FLOOR – SEA VIEW

51 800 000 €
Lorenza von Stein Monaco

Lorenza von Stein Monaco

47, boulevard du Jardin Exotique

Welcome to Palazzo Leonardo, a truly exceptional luxury residence. This spacious residence offers privacy and exclusivity with its private gated access and 24/7 concierge service.

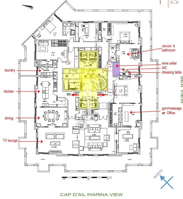
Perfect for a large family, this apartment spans the entire floor, providing ample space for everyone. Currently set up as a 6 bedroom, 4 bathroom home, there is plenty of room to accommodate any family's needs.

The terrasse wraps around the entire floor, allowing easy access to the outdoors and panoramic sea views from every room. At 750 m2, this property presents an opportunity for a full redesign to personalize the space according to your taste. With 6 parking spaces including in the sale, convenience is guaranteed.

#Ref : VMC2165-
Price : 51 800 000 €
Bedrooms : 5+
Bathrooms : 4
Product type : Apartment
Building : Palazzo Leonardo
District : Fontvieille (Monaco)
Living area : 500 sqm
Total area : 750 sqm
Terrace area : 250 sqm
Floor : 6
Release date : Libre
Parking : 5+

More details

The property is composed as such: a entry hall, a double living/lounge/tv area, a dining room, a fully equipped kitchen with island, a laundry room, 6 bedrooms, with ample storage throughout including 2 walk-in dressing areas, 4 bathrooms. 

The property is sold with 6 parkings & 2 cellar in the residence. 

Lorenza von Stein Monaco

Lorenza von Stein Monaco

47, boulevard du Jardin Exotique

Contact

MNPVWX
Copy the antispam code into the field on its right
* required information

Property location

Districts of Monaco

Mareterra Carré d'Or Condamine Fontvieille Jardin Exotique La Rousse - Saint Roman Larvotto Monaco-Ville Moneghetti Monte-Carlo Port